DIYテーブル脚/鉄脚/アイアン脚/アイアンレッグ/テーブル脚パーツ製作

(有) 永 田 製 作 所

創業1948年
アイアン脚・鉄脚 テーブル脚オーダー
展示/陳列/ディスプレイ金物製作
KOMAGOME TOSHIMA-KU TOKYO

(有) 永 田 製 作 所

アイアン脚・鉄脚
テーブル脚オーダー
KOMAGOME TOSHIMA-KU TOKYO

DIYテーブル脚
鉄脚 アイアン脚 オーダー

NAGATA LEGS

溶かした鉄を金型に流し込み圧縮形成されて作られるLアングル鋼材。
独特なヒビ模様が残る質感はまさにインダストリアル×アンティークな印象。
Lアングル鉄脚はこの材料を活かしたDIY用のアイアン脚パーツです

DIY用鉄脚アイアン脚パーツ 
NAGATA LEGS 

4本¥9,380~(税込¥10,318~)

 溶かした鉄をL型の金型に流し込んで圧縮形成して作られるLアングル鋼材は、独特なヒビ模様が残る表面の質感はまさにインダストリアル・アンティーク。 Lアングル鉄脚は、この材料を用いたDIY鉄脚パーツです。

Lアングル鉄脚
天板落とし込みタイプ

テーブル鉄脚パーツの高さオーダー 4本9,380~(税込¥10,318~)
他の種類も見る

Lアングル鉄脚 天板落とし込みタイプ

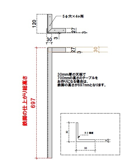
  天板コーナー部に天板を落とし込む形状のコーナー専用のアイアン脚です。受け部は天板載せタイプとは逆の作りをしており、L字型の部分に木天板を落とし込んでビス固定、という仕上がりとなります。Lアングルは3mm厚×30×30mmの材料サイズなので、内寸は27mmです。つまり27mm厚以上の木天板をご用意ください。また、Lアングルの材料には内側カドに少しRがついているため、天板を落とし込むと側面側に2mm程度の隙間が生じます。お気になされる方はそのRが当たる部分の木天板を少しヤスリで削ってあげるとピタっと納まりがよいので、よりキレイに完成いたします。なお、鉄脚は高さ710mm以下までは同額にてお作りをさせて頂きます(711mm以上については要・追加料金)。Lアングルは3mm厚×30×30の材料サイズなので30mm前後の木天板だと見た目がよい仕上がりになると思います。
 取付けビス穴は5φ穴を各脚4ヶ所ずつ加工してありますので、ご自身でビス固定をして頂いてテーブルが完成となります。天板取付け用のビスは付属いたしませんのでご用意をお願いいたします(※1)。
(※1:『トラスタッピングビス』という頭の丸いビスがオススメです。首下の長さはLアングルの厚み3mm+天板の厚みの1/2+α程度の長さがちょうどよいです。ビスの太さは天板の厚みによりご自身で考慮ください。30mm厚前後の天板の場合は4mm径のものがよく使われております。ホームセンターやモノタロウなどで手に入ります。)

アジャスター加工や塗装などの追加オプション

 インダストリアルデザインにするため無骨に製作し、溶接跡もそのまま、材料自体にキズなどがある箇所もたまにあります。とにかく安価にDIYテーブルを作りたいという方のため、基本仕様は無塗装、足元は切りっぱなしのワイルド仕上げです。そして別途オプション加工で、ガタつき調整のための足元アジャスター加工やクリヤーツヤ消し(※2)の塗装仕上げをお好みで追加して頂き、あなただけのアイアン脚をオーダーして頂けたらと思います。また、棚板をビス固定できる棚受けベロ溶接も開始いたしました。揺れ防止に効果的となります。
(※2:クリヤーツヤ消しのラッカースプレー塗装です。スプレー缶はホームセンターなどで1本¥500-程度で売られている安価なもので、速乾性も高く、カンタンに塗ることができますので、可能であればご自身で塗装までDIYなさってみてください。)

サイズ

材料:3mm厚×30×30mmLアングル
載せ部は120×120mmになります。
L型になった載せ部に柱を外被せにした状態で溶接しております。(写真参照)
高さ:基本仕様690mm (ご指定がない場合)
※鉄脚の総高さ+天板の厚みー27mm=テーブルの総高さとなります。
ご注文の際にお間違えのないように寸法計算をお願いします。
右写真部の参考図をご覧ください。
高さ711mm以上のオーダーにつきましては下記オプション料金表をご参照ください。
 カラー:黒皮生地。
(黒ではありません。黒皮色とは黒とグレーと青を足して3で割ったような色合です)

納期について

『今現在の納期について』をご覧ください。

ご注文方法&価格

ご注文はカートがないので下記をコピペの上、メールnagataseisakujo@diary.ocn.ne.jpにてご注文ください。
追って送料を含めた御見積書(製作図)をお送りさせて頂き、ご返事を頂いた上でご注文を承りさせて頂いております。
※PDF受信できるメールアドレスからご注文ください。

NAGATA LEGS 注文依頼
 
お名前:
郵便番号:〒
ご住所:
TEL:
 
(4本1セット表記)
天板落とし込みタイプ 9,380-(税込10,318) ×  セット
アジャスター加工   2,200-(税込2,420) ×  セット
クリヤー塗装     2,200-(税込2,420) ×  セット
棚受けベロ加工    1,700-(税込1,870)   ×  セット
→床から   mm の位置に溶接
 
※ご希望ないオプションについては記載不要です。
※バラ売りご希望の場合は割り算をした金額です。
※参考例:無塗装+アジャスター加工=11,580-(税込12,738-)
 
仕上がり総高さ (基本仕様690mm)  →    mm
※710mm以下の高さオーダーは同額にて承ります。711mm以上の寸法オーダーは右記のオプション料金が加算となります。
 
※別途送料となります。弊社お引取も可。
高さによって変動いたしますが、例えば総H=690mmの鉄脚を4本ご注文の場合、
ヤマト宅急便の120サイズとなります。ヤマト料金検索(東京発) 
 
※お支払い方法は銀行振込(UFJ)となります。(みずほ、巣鴨信用、ゆうちょ、対応可です)
 
※足元補強パーツ(よくある質問参照)をご希望の場合は、天板の厚み、サイズを明記の上お問い合わせください。また、この場合の送料につきましては、ヤマト宅急便の複数梱包となります。

ご注文の前に『よくある質問』をご一読ください。 
 
 
 
クリックすると拡大します。
アジャスター加工を施した場合の足元
棚受けベロ(穴付き)溶接も可能
 左:クリヤー塗装 右:無塗装のまま
ご自身でもカンタンに塗装可能
鉄脚の高さ711mm以上の場合
高さオーダー
オプション料金
     ~710mm以下
追加料金なし
711~750mm以下
+ ¥100-(税込¥110-)/本
751~800mm以下
+ ¥150-(税込¥165-)/本
801~850mm以下
+ ¥200-(税込¥220-)/本 
851~900mm以下
+ ¥250-(税込¥275-)/本
901~950mm以下
+ ¥300-(税込¥330-)/本
高さがあるほど揺れが生じるのでご注意ください。 

高さオーダーをミリ単位で対応

  天板コーナー部に天板を落とし込む形状のコーナー専用のアイアン脚です。受け部は天板載せタイプとは逆の作りをしており、L字型の部分に木天板を落とし込んでビス固定、という仕上がりとなります。Lアングルは3mm厚×30×30mmの材料サイズなので、内寸は27mmです。つまり27mm厚以上の木天板をご用意ください。Lアングルの材料には内側カドに少しRがついているため、天板を落とし込むと側面側に2mm程度の隙間が生じます。お気になされる方はそのRが当たる部分の木天板をヤスリで少し削ってあげるとピタっと納まりがよいので、よりキレイに完成いたします。なお鉄脚は高さ710mm以下までは同額にてお作りをさせて頂きます(711mm以上については要・追加料金)。Lアングルは3mm厚×30×30の材料サイズなので30mm前後の木天板だと見た目がよい仕上がりになると思います。

 取付けビス穴は5φ穴を各脚4ヶ所ずつ加工してありますので、ご自身でビス固定をして頂いてテーブルが完成となります。天板取付け用のビスは付属いたしませんのでご用意をお願いいたします(※1)。
(※1:『トラスタッピングビス』という頭の丸いビスがオススメです。首下の長さはLアングルの厚み3mm+天板の厚みの1/2+α程度の長さがちょうどよいです。ビスの太さは天板の厚みによりご自身で考慮ください。30mm厚前後の天板の場合は4mm径のものがよく使われております。ホームセンターやモノタロウなどで手に入ります。)

アジャスター加工や塗装等の追加オプション

 インダストリアルデザインにするため無骨に製作し、溶接跡もそのまま、材料自体にキズなどがある箇所もたまにあります。とにかく安価にDIYテーブルを作りたいという方のため、基本仕様は無塗装、足元は切りっぱなしのワイルド仕上げです。そして別途オプション加工で、ガタつき調整のための足元アジャスター加工やクリヤーツヤ消し(※2)の塗装仕上げをお好みで追加して頂き、あなただけのアイアン脚をオーダーして頂けたらと思います。また、棚板をビス固定できる棚受けベロ溶接も開始いたしました。揺れ防止に効果的です。
(※2:クリヤーツヤ消しのラッカースプレー塗装です。スプレー缶はホームセンターなどで1本500-程度で売られている安価なもので、速乾性も高く、カンタンに塗ることができますので、可能であればご自身で塗装までDIYなさってみてください。)

※クリックで拡大

サイズ

材料:3mm厚×30×30mmLアングル
載せ部は120×120mmになります。
L型になった載せ部に柱を外被せにした状態で溶接しております。(写真参照)
高さ:基本仕様690mm (ご指定がない場合)
※鉄脚の総高さ+天板の厚みー27mm=テーブルの総高さとなります。
ご注文の際にお間違えのないように寸法計算をお願いします。
上写真の参考図をご覧ください。
高さ711mm以上のオーダーにつきましては下記オプション料金表をご参照ください。
 カラー:黒皮生地。
(黒ではありません。黒皮色とは黒とグレーと青を足して3で割ったような色合です)

納期について

『今現在の納期について』をご覧ください。

ご注文方法&価格

ご注文はカートがないので下記をコピペの上、
メールnagataseisakujo@diary.ocn.ne.jp にご注文内容を明記の上、ご注文ください。
追って送料を含めた御見積書(製作図)をお送りさせて頂き、ご返事を頂いた上でご注文を承りさせて頂いております。
※PDF受信できるメールアドレスからご注文ください。

NAGATA LEGS 注文依頼
 
お名前:
郵便番号:〒
ご住所:
TEL:
 
(4本1セット表記)
天板落とし込みタイプ
¥9,380-(税込¥10,318-)
×  セット
アジャスター加工
¥2,200-(税込¥2,420-)
×  セット
クリヤー塗装
¥2,200-(税込¥2,420)
×   セット
棚受けベロ加工
¥1,700-(税込¥1,870)
×   セット
→床から   mmの位置に溶接
 
※ご希望ないオプションについては記載不要です。
※バラ売りご希望の場合は割り算をした金額です。
※参考例:無塗装+アジャスター加工
=¥11,580-(税込¥12,738-)
 
仕上がり総高さ
(基本仕様690mm)
  →    mm
※710mm以下の高さオーダーは同額にて承ります。
711mm以上の寸法オーダーは下記のオプション料金が加算となります。
 
※お支払方法は銀行振込(UFJ)となります。(みずほ、巣鴨信用、ゆうちょ、対応可)
※別途送料となります。弊社お引取も可。
高さによって変動いたしますが、例えば総H=690mmの鉄脚を4本ご注文の場合、
ヤマト宅急便の120サイズとなります。
ヤマト料金検索(東京発) 

高さオーダー
オプション料金
     ~710mm以下
追加料金なし
711~750mm以下
+ ¥100-(税込¥110-)/本
751~800mm以下
+ ¥150-(税込¥165-)/本
801~850mm以下
+ ¥200-(税込¥220-)/本 
851~900mm以下
+ ¥250-(税込¥275-)/本
901~950mm以下
+ ¥300-(税込¥330-)/本

※高さがあるほど揺れが生じるのでご注意ください。
※足元補強パーツ(よくある質問参照)をご希望の場合は、天板の厚み、サイズを明記の上お問い合わせください。また、この場合の送料につきましては、ヤマト宅急便の複数梱包となります。

ご注文の前に『よくある質問』をご一読ください。 
 

 
写真:左
cafe' ecru(カフェ エクリュ)
大阪市北区東天満2-4-17-1F
06-7504-9171
 
写真:中央左右
塩田有紀建築設計事務所 様
名古屋市名東区名東本町29
052-783-1339
撮影:鈴木文人 様

塩田有紀建築設計事務所様(名古屋)の素敵な取付け方法をご紹介をさせて頂きます。W1510xD1270xH760(mm)の大きなテーブルを2台並べてお作りになるために、天板裏面に60×60(mm)の角材を補強として取付け、その補強材のコーナーに天板落とし込みタイプの鉄脚を取付けされたそうです。天板裏面の補強材に鉄脚を取り付けるテクニックは私の方でも今まで思いつかなかった揺れ防止にもなる有効的なテクニックで、さすが建築家の方だなと勉強させて頂きました。 

写真:左
cafe' ecru(カフェ エクリュ)
大阪市北区東天満2-4-17-1F
06-7504-9171
 
写真:右上・左下
塩田有紀建築設計事務所 様
名古屋市名東区名東本町29
052-783-1339
撮影:鈴木文人 様

塩田有紀建築設計事務所様(名古屋)の素敵な取付け方法をご紹介をさせて頂きます。W1510xD1270xH760(mm)の大きなテーブルを2台並べてお作りになるために、天板裏面に60×60(mm)の角材を補強として取付け、その補強材のコーナーに天板落とし込みタイプの鉄脚を取付けされたそうです。天板裏面の補強材に鉄脚を取り付けるテクニックは私の方でも今まで思いつかなかった揺れ防止にもなる有効的なテクニックで、さすが建築家の方だなと勉強させて頂きました。 

よくある質問
ご注文の前にお読みください

Q: 木天板にネジを固定する下穴は必要ですか?

必要ないです。ビスについては商品詳細ページに記載しておりますが、『タッピングビス』、あるいは木ネジをお使い頂ければ、下穴は必要なく、ガリガリっと木材に入っていきます。ビスは付属いたしませんので、ご自身でご用意をお願いいたします。※ケヤキなどの堅い木材の場合は下穴加工をおすすめいたします。

Q: 木天板に反り止めは必要ですか?

厚みが25mmなど薄めの天板に反り防止加工は効果的かと思われます。木材の反りにつきましては、ご購入される木材屋さんとご相談なさってみてください。

Q: アジャスターとはなんですか?

床に対してのガタつき調整器具です。基本仕様の足元は材料を切りっぱなしにしたまま(バリ取りののみ)なので、フローリングなどの床はキズつきやすいです。対してアジャスター加工を施せば、床はキズつきにくく、ガタつきが生じた際のレベル調整が可能となります。ご注文頂く方の8割は追加を頂いている、非常にオススメのオプションです。

Q: クリヤー塗装には意味があるのですか?

Lアングル鋼材は角パイプなどど異なり、材料自体の表面が黒皮色とよばれる黒とグレーと青を足して3で割ったような色味をしております。サビにくく、サビが生じた際も目立ちにくい材質ではあります。しかし、鉄は鉄なので、設置場所の湿度状況によりサビは生じてきます。そのため、この生地の風合いを長く楽しんで頂くためのクリヤー塗装はアンティーク系の表面をキタナキレイ系とでもいいますか、濡れ布巾で拭いたような均一感を出すことができます。そして表面コーティングがされるためサビ延命措置的な意味があります。

焼付塗装工場に委託するような素晴らしい塗装グレードではなく、あくまでスプレー塗装なのでぶつけたりすればそのコーティングにキズはつきやすいですが、無塗装よりかは見た目がキレイに仕上がります。クリヤー(ツヤ消)ラッカスプレーは、ホームセンターで500円程度で売られている安価なもので塗るだけですので、ご自身で塗装もDIYしてみよう、という方はぜひトライなさってみてください。速乾性もあるため、片手で持って上半分を塗り、乾いたら下半分を塗る、このような感じでカンタンな作業です。鉄脚4本でしたらスプレー缶は1缶あれば十分です。たっぷり塗りつけるワケではなく、ササっと霧吹きするような感じで塗るのがポイントです。2度塗りするとベターです。コスト安にされたい方はご自身でぜひお試しください。

Q: 木天板の大きさはどの程度までがよいですか?

天板の厚み、ワイド、奥行きと鉄脚の高さ、そして取付ピッチにより、明確なご返答ができませんが、推奨天板サイズといたしましては30mm厚×W1200×D600(mm)程度までのサイズが望ましいです。一体型のテーブルフレームではなく、4本バラバラの鉄脚だけで、重量があり、サイズの大きい天板を支えるには限度があり、揺れが生じます。頭が重いと重心が上部に集中するため、足元がユッサユッサとフラつく、というイメージを抱いて頂けたらと思います。以前『一辺が3mの天板に使えますか?』と問い合わせを頂いたことがありますが、常識的に考えて無理があります。鉄脚はかなり頑丈に溶接して作っておりますので、4本脚で100kg程度の荷重をかけたところでは全く問題はありません。しかし、鉄脚が壊れる前に木天板に荷重がかかってバキっと割れると思います。つきましてご自身でご判断頂き、自己責任でDIYをなさって頂けますよう、よろしくお願いします。

Q:クリヤー塗装ではなく、黒など他の色に塗装することは可能ですか?

スプレー塗装はクリヤー(ツヤ消)のみ対応させて頂いております。あるいはご自身でお好きな色をスプレー塗装してください。最もコスト安な方法となります。

あるいは、かなりコスト増しとなりますが、外注先の焼付塗装工場に委託すれば対応は可能です。専門の塗装業者さんなので市販品レベルの強い塗装膜の仕上がりとなります(※4本以上より対応可)。しかし、外注先が遠方のため、依頼、引取りのための往復運搬諸経費を含んだ焼付塗装費用となり、割高になってしまうことをご了承ください。ご希望の色が黒や白などオーソドックスな色であれば塗装費用が+¥2,100-/本(税込¥2,310-)と、基本料金設定のほぼ倍となります。赤や緑など、下地に白を塗るような『二度塗り』になる場合は、さらにコストが上がります。

Q:天板サイズが30mm×1500×600で、鉄脚の高さが900mmのカウンターや(作業台)を作ろうと考えておりますが、揺れの出ない方法はありますか?

と、いうような方のために、下図のような足元補強パーツも製作させて頂いております。ご希望の場合はお問い合わせ頂ければ詳細図を書かせて頂きますので、天板サイズなどを明記の上、ご相談ください。脚4本をつなぐことにより、安定感のある仕上がりになります。ビス固定式でお作りいたします。製作費はサイズにより変動いたしますが、足元補強パーツ一式で+¥7,000~¥8,000-前後(税別)見ておいて頂けたらと思います。ただし、郵送について問題があります。一辺が1700mmを超えるサイズのものは宅急便では受付け不可となります。お問い合わせを頂いた段階で郵送の可否をお伝えさせて頂きますが、補強パーツの長さが1700mmを超える場合は、お引き取りのみでの対応になります。

アイアン脚ダイニングテーブル

真ん中や壁側などに補強

Q: 女性の力でドライバーにて天板をビス固定しても完成できるでしょうか?

電動ドライバーでのビス固定が望ましいですが、お持ちでない場合は、ゴムのグリップがついていて、柄の長いドライバー、例えばボールグリップドライバー、などがオススメです。テコの原理で力が加わりやすいのでご参考になさってください。しかし電動ドライバーよりかはビスの効きは劣るので、締め付けが弱いと揺れが生じる可能性がありますのでご了承ください。

Q: 展示会用に鉄脚を何回も取り外したい場合はどうしたらよいでしょうか?

天板に鬼目ナットを埋め込んで、トラスボルトで固定を行って頂ければ、天板部のビス穴がバカにならずに、何回でも取り外しを行うことができます。その際は通常のビス穴(5φ穴)よりも逃げが効くように大きめの穴を加工いたしますので、何mmのトラスボルトで固定したい、などご相談ください。穴を大きく加工するだけなので追加加工費などは頂いておりません。

 

Q: アジャスターではなく、キャスターを取り付けることはできますか?

まず、キャスターはご自身で手配して取付けを行ってください。オプションのアジャスター加工につきましては、M8(P1.25)というナットを溶接しておりますので、同径のねじ込み式キャスターであれば問題なく付け替えが可能です。しかし、お使いになられたいキャスターがある場合は、まずご相談ください。そのネジ径にあったナットを溶接加工いたします。ねじ込み式のキャスターのネジ径は、M8(P1.25)、もしくは3/8(16山)というサイズのもののどちらかでお選び頂けますよう、お願いいたします。加工費につきましてはアジャスターはつきませんが、ナット変更費用としてアジャスター加工費と同じ+¥500/1本(税別)となります。※M12など太いネジ径はナットが大きすぎて見た目バランスが悪くあまりオススメしません。

Q: 鉄脚21本以上で、例えば40本くらい注文できますか?

誠に申し訳ございませんが大量のご注文につきましては基本的にお受けをしておりません。NAGATA LEGSのオリジナル鉄脚に関しましては1回のご注文につき5セット(20本)までとさせて頂いております。この商品に関しましては多くの方に気軽にDIYテーブル製作やアイアン脚オーダーを楽しんで頂きたいというコンセプトで安価設定をさせて頂いております。特売品のため、ご注文数に制限をかけさせて頂いていることをご理解頂けたらと思います。 

Q&Aの最終更新日 : 2025-08-21

 

HOME | 天板落込/鉄脚オーダー